
19
Parks Victoria, Albert Park Office and Depot

23
RMIT New Academic Street, Melbourne

16
St Matthew's Primary School, Fawkner

19
Lilydale High School, Zoology and Administration

15
Lilydale Heights College Sports Pavilion and Sustainability Hub

10
Upper Yarra Secondary College, STEAM Pavilion

13
Good Samaritan Primary Nazareth Learning Village
15
Dawes House, Fitzroy North

12
Pitcher Park Pavilion, Alphington

6
Tarndwarncoort, Colac

6
DHHS Community Care

6
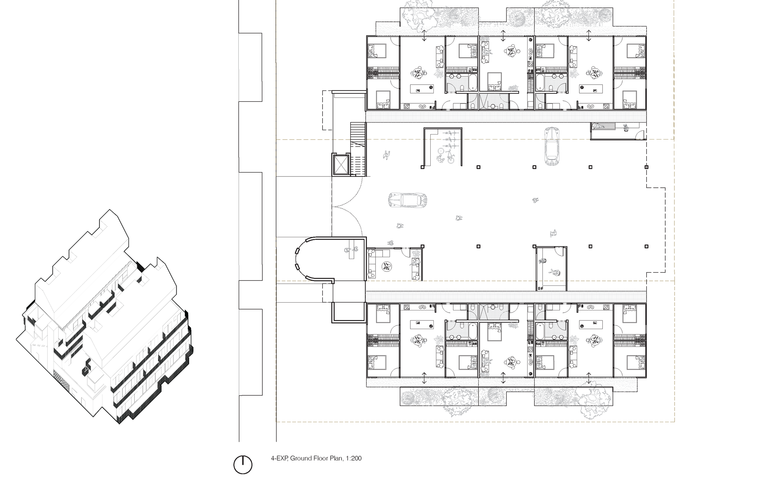
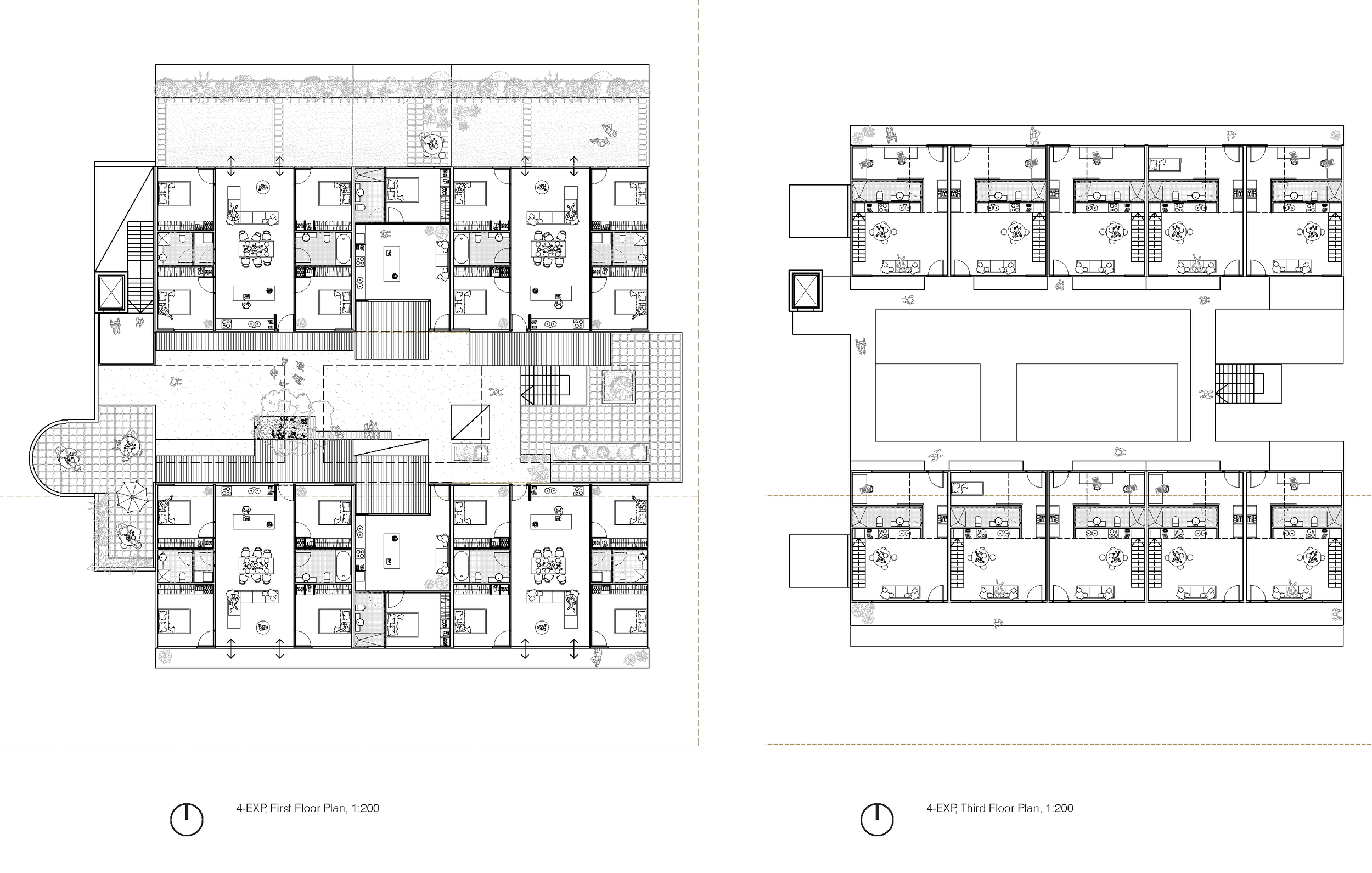
4-EXP

4
Peninsula Courtyarda

14
St Bernard's Year 5&6 Hub, Coburg

7
Zero Latency, Abbotsford
9
Scion Wine, Rutherglen

9
Station Street, Carlton

6
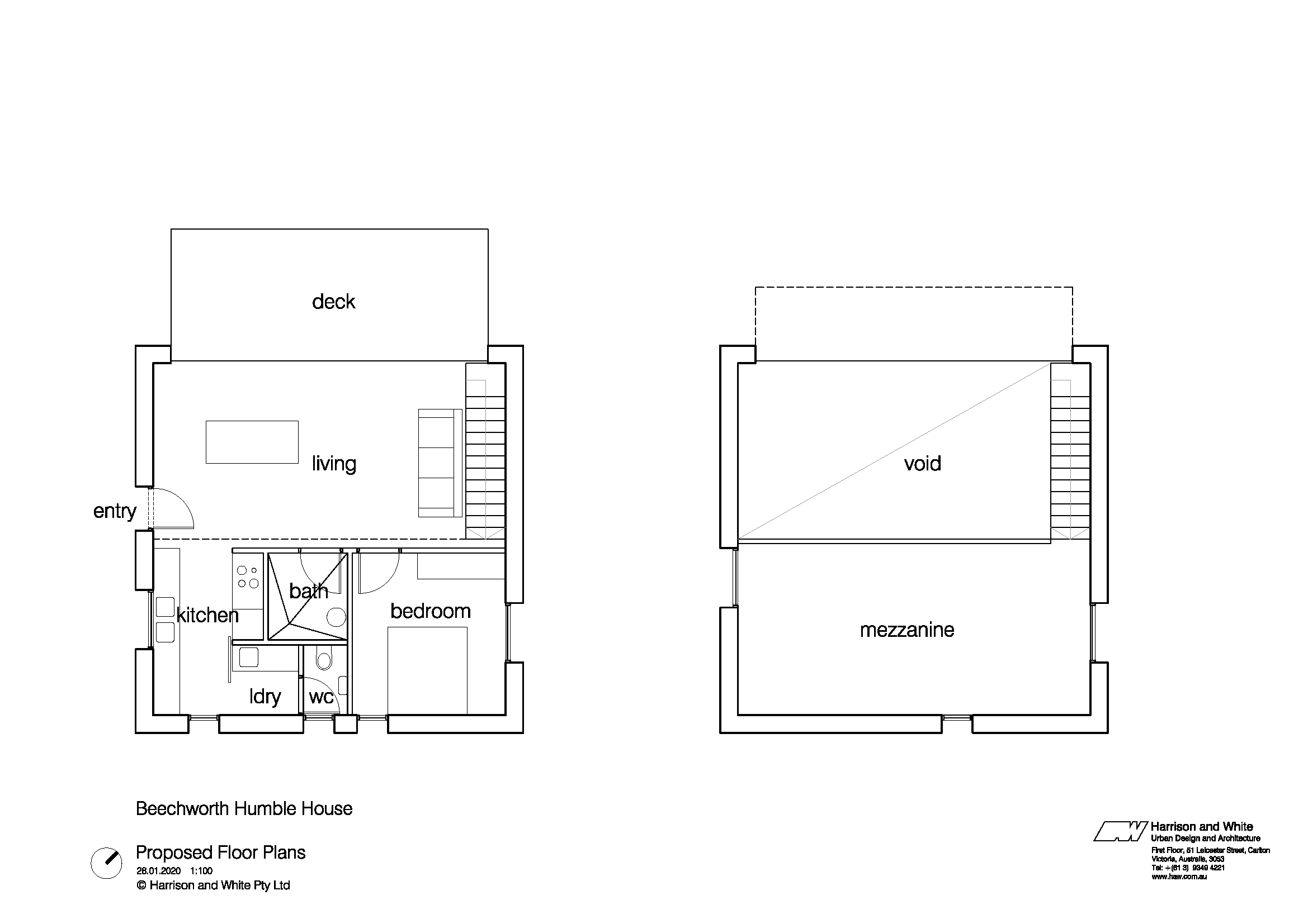
Humble House

11
Preston City Oval

5
Barkly Street, Brunswick

6
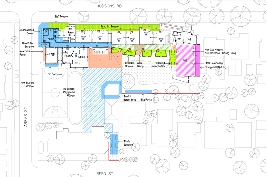
Lilydale and Upper Yarra Education Plan

12
Hunt Crescent, Ascot Vale

6
Foyn-Johanson House, Northcote

9
Olive Lane, Balwyn North

6
Architext Pop Up
16
Heald House, Kilsyth

9
Good Samaritan Masterplan

6
Western Gateway

7
R G C Cook Pavilion

12
Thayer-Burnett House, North Melbourne

5
St Margaret Mary's, Spotswood

3
Ian Potter Museum of Art Entry and Student Area

4
509 Spencer Street, Melbourne

2
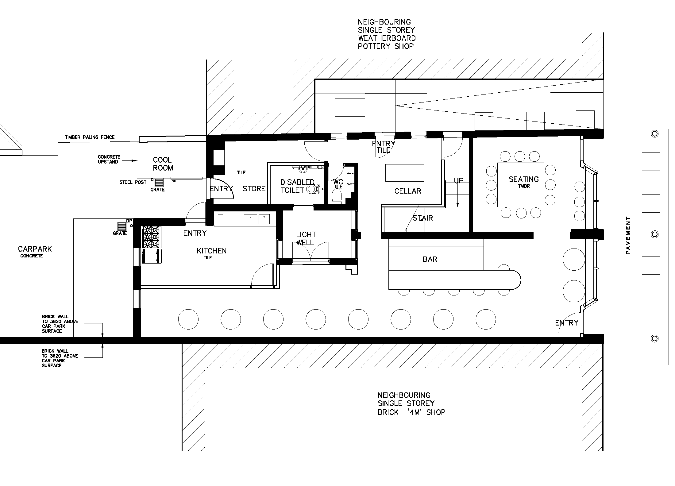
Enoteca Pi

5
Joy Melbourne Radio Station
3
Kenilworth Dunny Competition

7
Ennis House

5
Good Samaritan Primary School Administration Works

6
Barry Road Community Activity Centre

4
Implementing the Rhetoric

5
St Bernard's Parish Fence, Coburg

5
St Margaret's, Maribyrnong
6
Cape Street

3
Cleve Grove, Heidelberg

3
Flinders St Station Competition

6
Moonee Street

4
Tully Bathroom

3
Melbourne Central Rooftop

7
Smarter Stay, Smarter Go

6
VicUrban Geelong

7
St Luke's Church and Community Centre

9
Seaford Surf Life Saving Club